Popis
Na prenájom – reprezentatívny kancelársky priestory so súkromným parkovaním, v tichej lokalite Šamorínska ulica, Senec
✅Výmera: 19 m²,
✅Priestory sú klimatizované a disponujú vlastným parkovaním priamo vo dvore objektu.
✅Dispozičné riešenie:
– priestranná vstupná chodba s možnosťou zriadenia recepcie,
– štyri kompletne zariadené kancelárie,
– vybavená kuchynka,
– sociálne zariadenie,
– technická miestnosť.
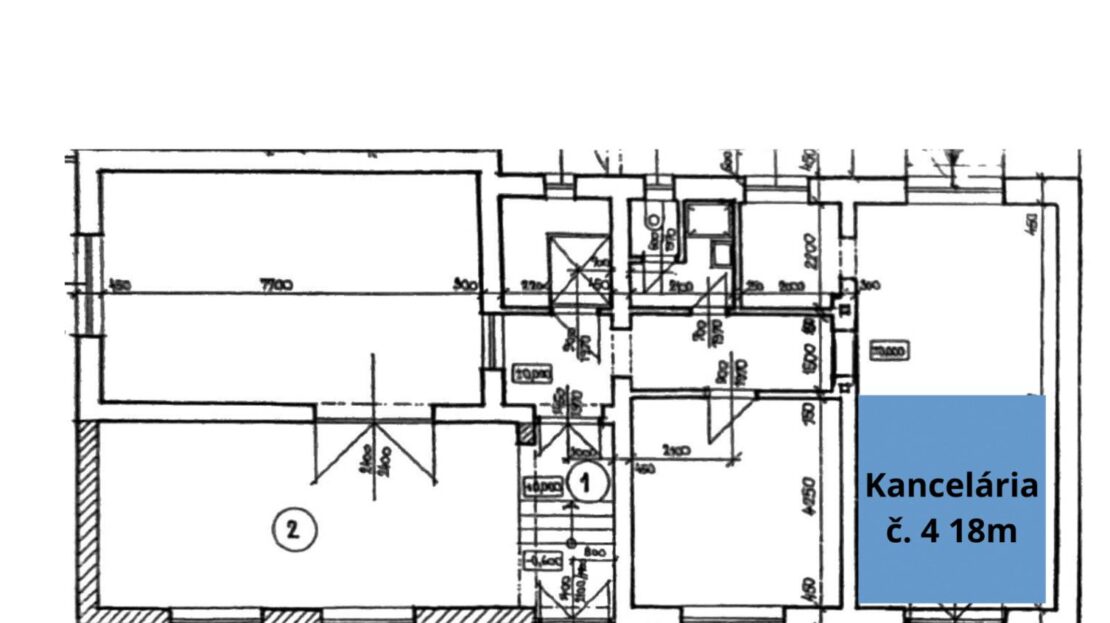
Celková výmera administratívnych priestorov je 196 m², priestor je možné prenajať aj samostatne na jednotlivé kancelárie v počet 4 kancelárie
Priestory je možné podľa potreby prispôsobiť – napríklad predeliť sklenenými priečkami a vytvoriť až 10 samostatných kancelárií pre približne 20 zamestnancov.
✅Vybavenie:
– klimatizácia,
– alarm,
– internetové pripojenie,
– centrálna tlačiareň/kopírka,
– kancelársky nábytok,
– vlastné parkovanie (5 miest súkromne vo dvore s diaľkovým ovládačom, ďalšie oproti budove).
✅Doprava:
Výborná dostupnosť – priame napojenie na cestu č. 62 a diaľnicu D1.
✅Cena prenájmu:
200,00 Eur / mesiac + energie na jednotlivé kancelárie 50 EUR / mesiac a 20 Eur poplatok za upratovanie/ mesiac
parkovacie miesto v cene prenájmu
– Priestor voľný od 01.02.2026
✅KONTAKT:
Mgr. Jana Čepelová
Tel.: +421 948 212 012
E-mail: info@stavinvestreality.sk
Web: www.stavinvestreality.sk











